福建省泉州第一中学足球、排球训练墙项目招标公告
1.招标条件
福建省泉州第一中学足球、排球训练墙项目已经 校党委研究同意实施。目前已具备施工单位招标条件,现就其施工单位进行招标 ,招标人为福建省泉州第一中学。
2. 施工项目概况与招标范围
2.1招标人:福建省泉州第一中学
2.2项目名称:福建省泉州第一中学足球、排球训练墙项目
2.3项目实施地点:泉州第一中学东海校区
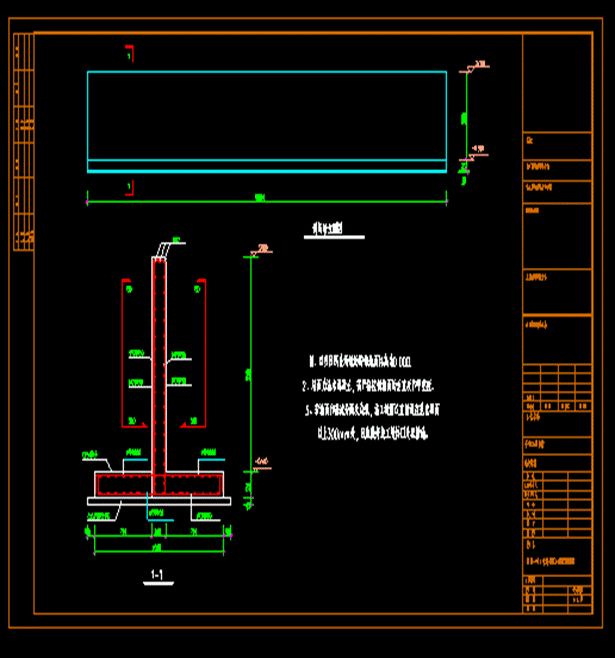
2.4项目内容:见附件
2.5项目最高控制价:7.37万元
2.6施工工期:20天。
3. 评标办法
3.1投标人资格:本招标项目要求投标人须具备有效的不低于三级建筑工程施工总承包资质和《施工企业安全生产许可证》
3.2经评审最低价方式确定中标候选人。
4. 投标文件的递交及开标
4.1投标文件递交的截止时间(即投标截止时间,下同)及开标时间为 2021年2月23日11时00分,地点为:东海校区9楼会议室。
4.2投标文件需包括:公司资质复印件,投标人报价及投标人委托书、现场勘察证明(以上资料均需加盖公章)。逾期送达或者未送达指定地点或者未按要求密封或者加写标记的投标文件招标人不予受理。
4.3现场勘察时间:2021年2月22日10时至11时(已勘察过的潜在供应商可不用再次现场勘察)。
5. 联系方式
联系人:张老师 15106096710 蔡老师 18159278798
福建省泉州第一中学招标领导小组
2021年2月19日
附其他说明:
(1) 根据现场实际情况,土方不具备机械作业条件。经建设单位同意,土方工程按人工作业考虑。
(2) 根据建设单位推荐的施工方案,并结合现场实际情况,以包干计价的方式计算“跑道保护层”、“二次搬运”和“地垫保护”等措施费用。
(3) “二次搬运”费用包含:因场地受限而额外使用的吊车费用,包括且不限于钢筋等施工材料的进退场、钢管脚手架和模板等措施材料进退场、施工完剩余其它材料的退场等所有建筑材料的进出场。
(4) “地垫保护”费用包含:所有人员、材料及机械设备进出现场时所采取的所有场地保护费用。
(5) “跑道保护层”费用包含:为满足施工需要而对现场进行的全部保护费用。根据建设单位推荐的施工方案,“跑道保护层”的措施标准不低于“先满铺一层地垫保护层,在地垫保护层上再满铺一层木模板保护层”,保护面积按不少于180平方米且满足施工需要的标准估算。
附件1

附件2
|
分部分项工程量清单与计价表 |
||||||||
|
|
||||||||
|
工程名称:泉州一中(东海校区)足球、排球训练墙工程 |
第1页 共1页 |
|||||||
|
序号 |
项目编码 |
项目名称 |
项目特征描述 |
计量单位 |
工程量 |
金 额(元) |
||
|
综合单价 |
合价 |
|||||||
|
单项工程 |
||||||||
|
房屋建筑与装饰工程 |
||||||||
|
一般土建 |
||||||||
|
1 |
010501001001 |
垫层 |
(1)非泵送商品凝土 |
m3 |
3.240 |
|
|
|
|
2 |
010501002001 |
带形基础 |
(1)泵送商品混凝土 |
m3 |
10.084 |
|
|
|
|
3 |
010504004001 |
挡土墙 |
(1)泵送商品混凝土 |
m3 |
12.600 |
|
|
|
|
4 |
010515001001 |
现浇构件钢筋 |
(1)Φ12 |
t |
2.343 |
|
|
|
|
土石方 |
||||||||
|
5 |
010101003001 |
挖沟槽土方 |
(1)三类土 |
m3 |
41.040 |
|
|
|
|
6 |
010103001001 |
回填方 |
(1)符合设计和规范要求 |
m3 |
26.280 |
|
|
|
|
7 |
010103002001 |
余方弃置 |
(1)粘性土 |
m3 |
10.820 |
|
|
|
|
合 计 |
|
|||||||
|
单价措施项目清单与计价表 |
||||||||
|
|
||||||||
|
工程名称:泉州一中(东海校区)足球、排球训练墙工程 |
第1页 共1页 |
|||||||
|
序号 |
项目编码 |
项目名称 |
项目特征描述 |
计量单位 |
工程量 |
金 额(元) |
||
|
综合单价 |
合价 |
|||||||
|
单项工程 |
||||||||
|
房屋建筑与装饰工程 |
||||||||
|
一般土建 |
||||||||
|
1 |
011701003001 |
剪力墙钢管脚手架 |
(1)剪力墙钢管脚手架 |
m2 |
126.000 |
|
|
|
|
2 |
011702001001 |
基础模板 |
(1)带形基础 |
m2 |
13.720 |
|
|
|
|
3 |
011702011001 |
墙模板 |
(1)3.5m |
m2 |
127.400 |
|
|
|
|
4 |
011702033001 |
垫层模板 |
(1)垫层 |
m2 |
4.000 |
|
|
|
|
5 |
011708001001 |
二次搬运 |
|
项 |
1.000 |
|
|
|
|
6 |
01B001 |
地垫保护 |
|
项 |
1.000 |
|
|
|
|
7 |
011701002001 |
跑道保护层 |
|
m2 |
1.000 |
|
|
|
|
土石方 |
||||||||
|
合 计 |
|
|||||||
附件3
现场勘察证明
我方于 年 月 日完成对福建省泉州第一中学足球、排球训练墙项目现勘察。
特此证明
投标商名称(公章):
校方签名:
年 月 日